Rodinný dům na prodej, Horní Bludovice
4 570 000 Kč
- kód zakázky
- 108015
- okres
- Karviná
- lokalita
- Horní Bludovice
- stav objektu
- novostavba
- plocha pozemku
- 2271 m2
- počet pokojů
- 4+kk
- obytná plocha
- 130 m2
- typ budovy
- cihlová
- poloha objektu
- samostatný
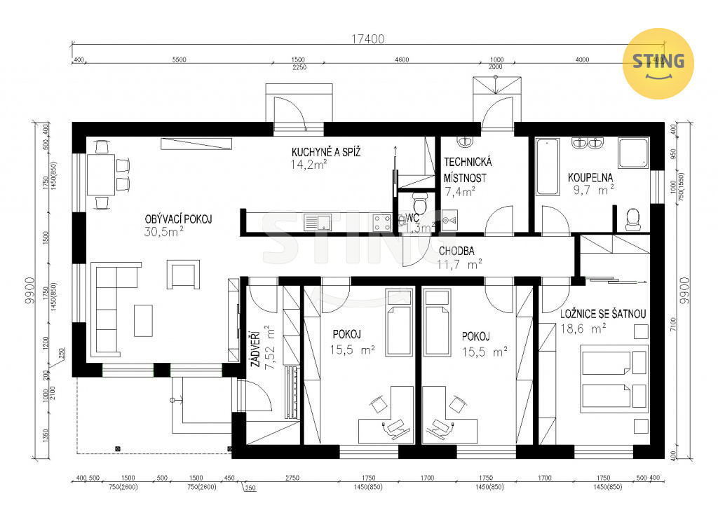
Nabízíme k prodeji novostavbu, která byla stavěna se dvěma cíli –
kvalita a pohodlí. Rodinný dům s dispozicí 4+kk vystihuje svou ideální
dispozicí potřeby dnešní rodiny. Prostorný obývací pokoj spojený
s kuchyní, z kuchyně výstup francouzským oknem na zahradu . Dlouhá chodba
se třemi neprůchozími pokoji s okny na jižní stranu s výhledem na
Beskydy, technické zázemí, samostatné WC, koupelna s vanou a sprchovým
koutem, součástí je i druhé WC, celková obytná plocha 130 m2.
Plynový kotel s podlahovým vytápěním, díky kterému budete vnímat
příjemné teplo od nohou. Podlahy kombinace lamino a dlažba, centrální
vysávání, plastová okna trojsklo. Součástí prodeje je pozemek o celkové
rozloze 2271 m2. Dům je napojen na soukromou kanalizaci. Klidné
prostředí na okraji obce, centrum s občanskou vybaveností cca 2km.
Neváhejte s prohlídkou.
Nenašli jste, co jste hledali?
Napište nám vaši představu a náš makléř vám připraví výběr z aktuální nabídky.
Zadat poptávku
















