Byt 4+kk na prodej, Opava / Předměstí, ulice Rooseveltova
3 199 000 Kč
- kód zakázky
- 35947
- okres
- Opava
- lokalita
- Opava / Předměstí
- ulice
- Rooseveltova
- dispozice bytu
- 4+kk
- vlastnictví
- osobní vlast.
- podlaží
- 4
- počet podlaží objektu
- 5
- užitná plocha
- 106 m2
- typ budovy
- cihlová
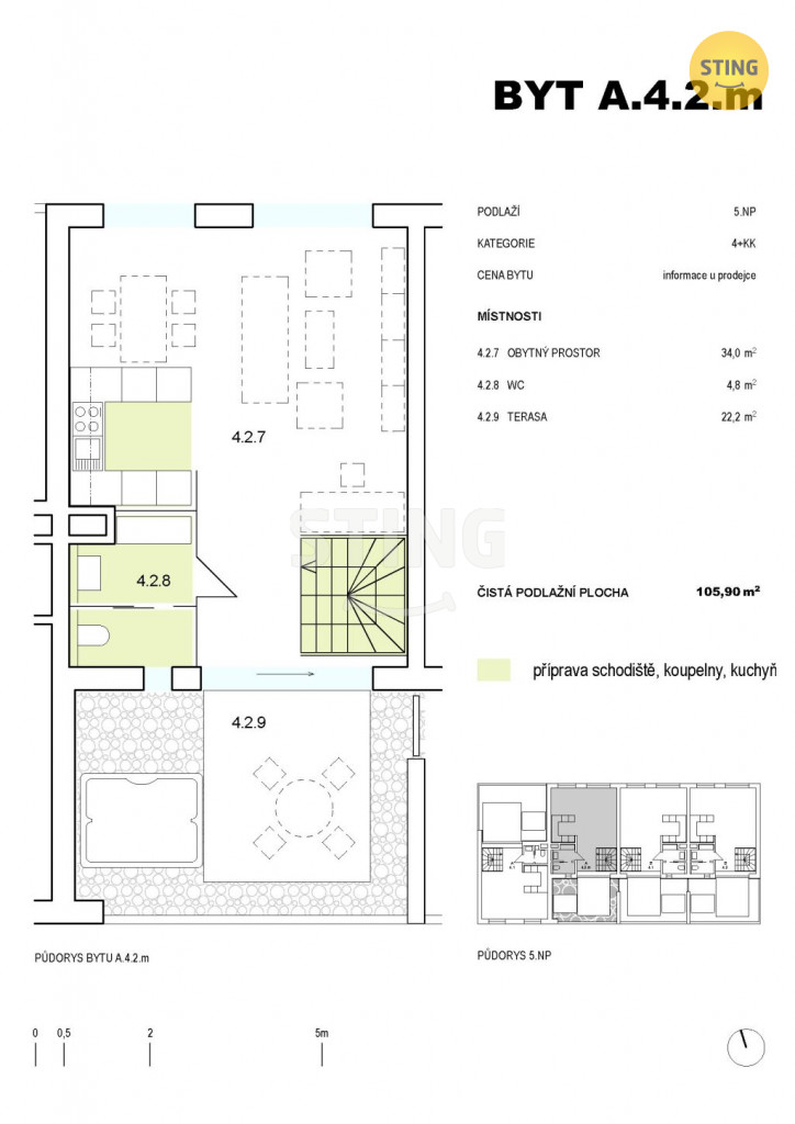
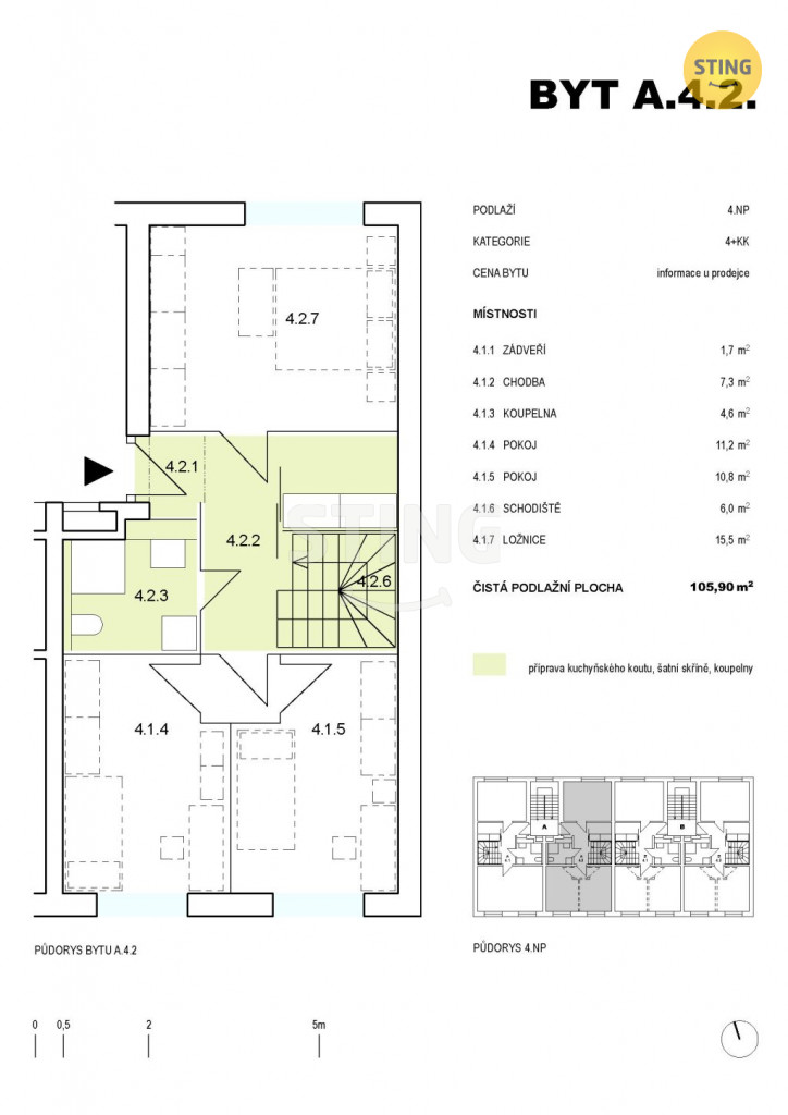
Prodej mezonetového bytu v nově budovaném bytovém domě Rezidence
Rooseveltova. Byt se nachází v cihlové zástavbě v žádané lokalitě
Opava – Předměstí. Jedná se o mezonetový byt o velikost 4+kk.
V přízemí bytu je řešena klidová zóna – 2× pokoj, ložnice, koupelna
s vanou, umyvadlem a WC. Střed dispozice je využit pro vstupní část
s vestavěnou skříní a schodištěm do mezonetu. Mezonet je určen jako
obytný. Je zde otevřená dispozice kuchyňské linky, jídelny a obývacího
pokoje. V ceně bytu je i nová kuchyňská linka se spotřebiči
(myčka,lednička s mražákem, sklokeramická deska, horkovzdušná trouba).
Dále je zde samostatné WC. Mezonet má přímou vazbu z obytné místnosti na
střešní terasu s dřevěnou zpevněnou plochou a vířivou vanou. Byt má
k dispozici vlastí sklep a vlastní stání ve dvoře. Na patře vždy pouze
dva byty. Dům je řešen z cihlových tvárnic Porotherm 440, plastová okna,
vstupní bezpečnostní plastové dveře, do bytů vstupní bezpečností
dřevěné dveře, plné. Vytápění bytu je ústřední,…
více
informací
Nenašli jste, co jste hledali?
Napište nám vaši představu a náš makléř vám připraví výběr z aktuální nabídky.
Zadat poptávku






