Byt 3+1 na prodej, Ostrava / Vítkovice, ulice Sovova
750 000 Kč
(cena k jednání, včetně provize, Cena vč. provize RK!)
- kód zakázky
- 45993
- okres
- Ostrava-město
- lokalita
- Ostrava / Vítkovice
- ulice
- Sovova
- dispozice bytu
- 3+1
- vlastnictví
- družstevní
- podlaží
- 4
- počet podlaží objektu
- 5
- užitná plocha
- 121 m2
- typ budovy
- cihlová
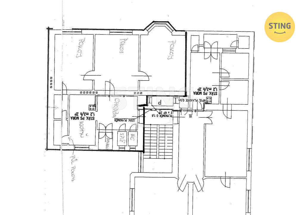
3,5+1 s balkonem na ul. Sovova v Ostravě-Vítkovicích, přelom Zábřehu a
Vítkovic (u ČEZ arény). Plocha bytu 120,85 m2. Výhled z bytu
2 strany. Stará cihlová zástavba s vysokými stropy a velkými prostornými
pokoji. Byt vhodný k celkové rekonstrukci dle přání a představ budoucího
majtele. Umístění – 4. NP (nad bytem ještě jedno patro). Výměra
pokojů 25,62 m2, 22,26 m2, 23,32 m2,
kuchyň 17,57 m2, chodba 15,4 m2, koupelna
4,91 m2, WC 1,31 m2, spíž 1,31 m1, balkon
4 m2, půl pokoj 5,15m 2 (v minulosti pokoj pro služku). Dům je
po celkové revitalizaci – plastová okna, fasáda, zvonky, schránky,
vchodové dveře. Byt v původním stavu. Dům se nachází v blízkosti ČEZ
arény.
Nenašli jste, co jste hledali?
Napište nám vaši představu a náš makléř vám připraví výběr z aktuální nabídky.
Zadat poptávku












