Byt 3+1 na prodej, Český Těšín / Dolní Žukov, ulice Ropická
5 800 000 Kč
- kód zakázky
- 134276
- okres
- Karviná
- lokalita
- Český Těšín / Dolní Žukov
- ulice
- Ropická
- dispozice bytu
- 3+1
- vlastnictví
- osobní vlast.
- podlaží
- 1
- počet podlaží objektu
- 2
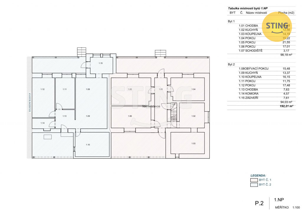
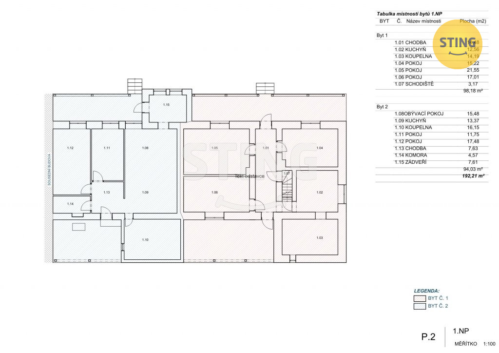
- užitná plocha
- 158 m2
- bezbariérový byt
- Ano
Prostorný byt 3+1 s parametry rodinného domu, dva vstupy, dvě terasy,
garáž a parkování – Český Těšín, Dolní Žukov.
Nabízíme k prodeji nadstandardně prostorný byt o dispozici 3+1 a užitné
ploše 98 m? + obytná půda 60 m?, umístěný v rodinném domě, ve kterém
se nacházejí pouze dvě bytové jednotky. Nemovitost je situována v klidné
a vyhledávané části Dolní Žukov.
Byt disponuje dvěma samostatnými vchody, což zajišťuje maximální pohodlí
a flexibilitu využití. K jednotce náleží dvě terasy, ideální pro relax
i posezení s rodinou, dále garáž a parkovací stání, které výrazně
zvyšují komfort každodenního bydlení. Součástí nabídky je pozemek
o výměře 416 m? určený k užívání k tomuto bytu a zároveň
společný podíl na pozemku o celkové výměře 866 m?.
Dispozice 3+1 je řešena velmi prakticky a nabízí prostornou vstupní
chodbu, tři samostatné neprůchozí pokoje, samostatnou kuchyni a velmi
prostornou koupelnu, která poskytuje nadstandardní pohodlí.
Rodinný dům i bytová jednotka prošly kompletní rekonstrukcí,…
více
informací
1. máje 540
739 61 Třinec
Modelace výpočtu financování prostřednictvím STING Finance s.r.o.
Kč % Kč % Kč let 22 935 KčVypočtená modelová splátka úvěru odpovídá úrokové sazbě 4,29 % p.a. při výši úvěru 4 640 000 Kč a splatnosti 30 let. Předpokladem je splnění všech podmínek pro poskytnutí a čerpání úvěru stanovených úvěrující institucí. Nejedná se o závaznou nabídku.
Ing. Kotajny Roland
602 705 614
roland.kotajny(zavináč)stingfinance.cz
Nenašli jste, co jste hledali?
Napište nám vaši představu a náš makléř vám připraví výběr z aktuální nabídky.
Zadat poptávku





















