Rodinný dům na prodej, Unhošť
7 290 000 Kč
- kód zakázky
- 134156
- okres
- Kladno
- lokalita
- Unhošť
- stav objektu
- ve výstavbě (hrubá stavba)
- plocha pozemku
- 1151 m2
- počet pokojů
- 3
- obytná plocha
- 72 m2
- typ budovy
- cihlová
- poloha objektu
- samostatný
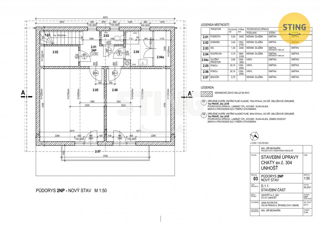
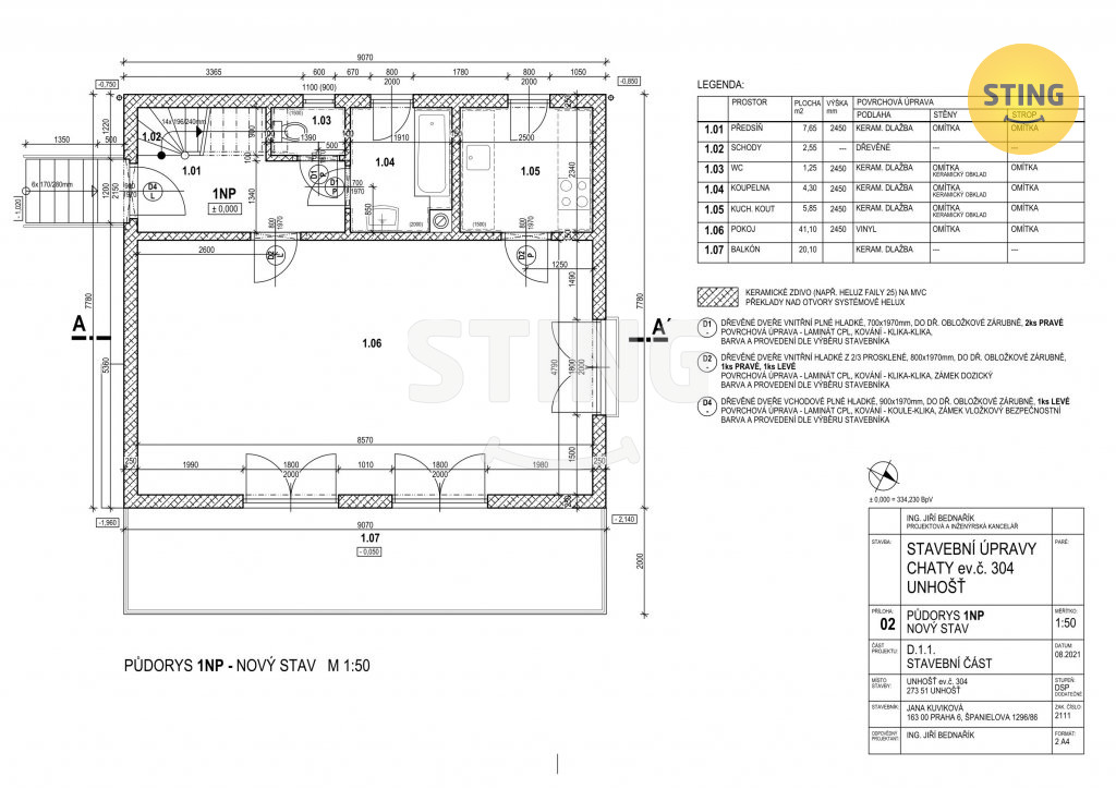
Nabízíme k prodeji rozestavěnou chatu o velikosti 72 m2 na
souboru dvou pozemků o celkové výměře 1 151 m2 v klidné a
velmi vyhledávané rekreační oblasti u Dědkova Mlýna, v katastrálním
území Unhošť (okr. Kladno), pouhých 20 km západně od Prahy.
Na první parcele o velikosti 467 m2 se nachází dva dřevníky a
rozestavěná chata s platným stav. povolením se zastavěnou plochou
72 m2. Objekt je ve stavu hrubé stavby z r. 2022 s plánovanou
dispozicí:
Přízemí: prostorný obývací pokoj s přirozeným světlem a krásným
výhledem do údolí. Místnost pro kuchyňský kout, koupelna s toaletou
(příprava na instalace)
Patro: příprava pro 2 ložnice, šatnu, koupelnu
Interiér je připraven k dokončení podle vlastního stylu – ideální pro
ty, kteří hledají projekt s potenciálem a možností individuálního
řešení.
Druhá parcela přímo navazuje na první a dnes slouží jako rozšíření
zahrady a současně také příjezdová cesta k chatě.
Na pozemku se dříve nacházela původní chata (již odstraněná), což
může do budoucna umožnit…
více
informací
Kpt. Jaroše 271/1
276 01 Mělník
Modelace výpočtu financování prostřednictvím STING Finance s.r.o.
Kč % Kč % Kč let 28 827 KčVypočtená modelová splátka úvěru odpovídá úrokové sazbě 4,29 % p.a. při výši úvěru 5 832 000 Kč a splatnosti 30 let. Předpokladem je splnění všech podmínek pro poskytnutí a čerpání úvěru stanovených úvěrující institucí. Nejedná se o závaznou nabídku.
Demassezová Kamila
777 208 600
kamila.demassezova(zavináč)stingfinance.cz
Nenašli jste, co jste hledali?
Napište nám vaši představu a náš makléř vám připraví výběr z aktuální nabídky.
Zadat poptávku





















