Rodinný dům k pronájmu, Dolní Domaslavice
35 000 Kč/měsíc
- kód zakázky
- 132769
- okres
- Frýdek-Místek
- lokalita
- Dolní Domaslavice
- stav objektu
- velmi dobrý
- plocha pozemku
- 1233 m2
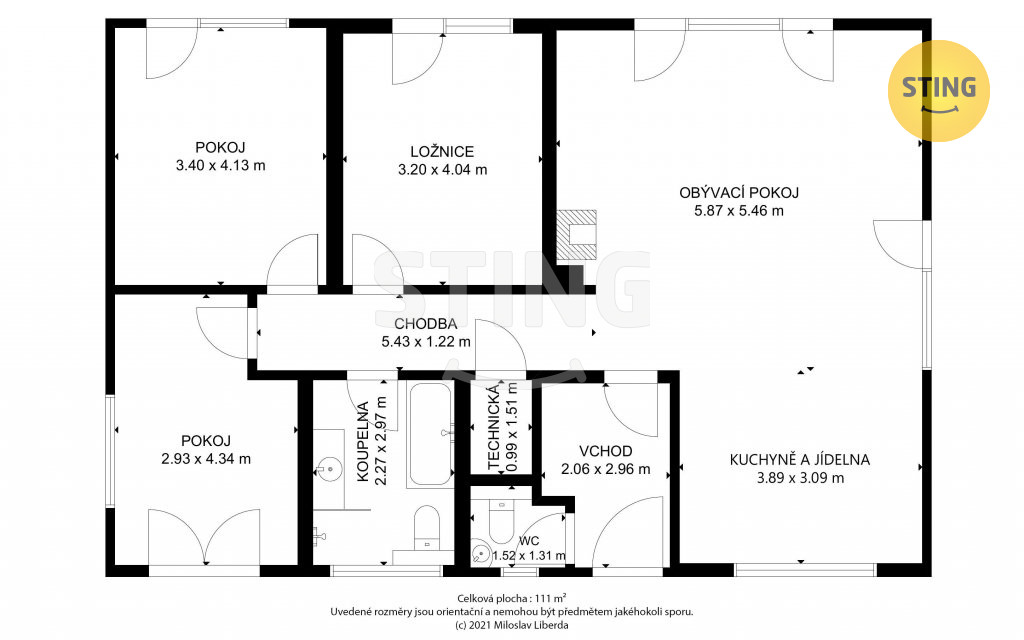
- počet pokojů
- 4 kk
- obytná plocha
- 130 m2
- typ budovy
- cihlová
- poloha objektu
- samostatný
Nabízíme k pronájmu novostavbu zděného domu s pozemkem o výměře
1244 m2, v klidné a tiché části obce Dolní Domaslavice. Dům
s energetickou náročností „B“ velmi úsporná je vystavěn
z Porothermu, vytápění podlahové elektrické, obývací pokoj s jídelnou
a kuchyní lze vytápět i krbovými kamny. Dům je připojen na dálkový
vodovod, ohřev vody El. bojlerem a odpady svedeny do pevné plastové jímky.
Omítky vnitřní vápenné štukové, fasáda omítky silikonové, sedlová
střecha z AL plechu. Dispozice bytu je 4 kk, prostorný obývací pokoj
oddělený od kuchyně jídelním koutem ( kuchyňská linka je vybavena varnou
deskou, el. troubou, vestavěnou myčkou a mikrovlnou troubou ), ložnice, dva
dětské pokoje, nebo dětský pokoj a pracovna. Z každého jednotlivého
pokoje je samostatně možnost výstupu do zahrady francouzským oknem. Tento od
vnějšího pohledu menší, ale uvnitř prostorově dostatečně velký dům
má v 1. NP ještě komoru, koupelnu s vanou, s proskleným sprchovacím
koutem a WC. Pozemek je rovinatý s příjezdem…
více
informací
1. máje 540
739 61 Třinec
Nenašli jste, co jste hledali?
Napište nám vaši představu a náš makléř vám připraví výběr z aktuální nabídky.
Zadat poptávku
















