Rodinný dům na prodej, Ostrava / Petřkovice
11 890 000 Kč
- kód zakázky
- 132942
- okres
- Ostrava-město
- lokalita
- Ostrava / Petřkovice
- stav objektu
- velmi dobrý
- plocha pozemku
- 715 m2
- počet pokojů
- 6
- obytná plocha
- 193 m2
- typ budovy
- cihlová
- poloha objektu
- samostatný
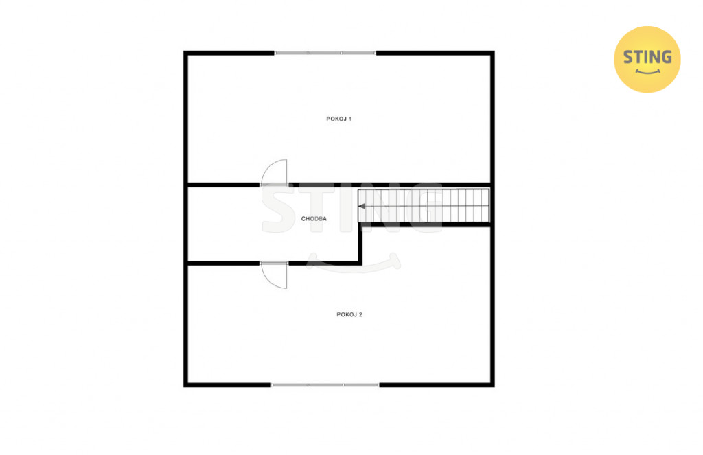
Nabízíme Vám k prodeji rodinný dům o vel. 6+KK, ul. Nad Úhorem,
v Ostravě Petřkovicích. Jedná se o zděný dům (Ytong), zateplený (15cm
polyester) se sedlovou střechou (krytina – BRAMAC taška), kolaudace v roce
2008. Půdorys domu: v 1.NP se nachází srdce celého domu – obývací
pokoj propojený s kuchyní a jídelním zázemím (o vel.54,3m2)
se vstupem na terasu. Atmosféru prostoru umocňuje krb s výměníkem. Prostor
designově zkrášlují a také pomyslně rozdělují dřevěné trámy na
stropě. Moderní kuchyňská linka na míru se spotřebiči (kuchyňské studio
Válek & Kačena) s ostrůvkem. Praktická technická místnost o vel.
8,3 m2 (pračka, sušička), plynový kotel. Tři samostatné pokoje
(16m2, 16,4m2, 13,5m2). Velkorysá koupelna
(o vel.10,9m2) ,masážní vana s tryskami a sprchovací kout.
Podlahové vytápění na celém patře. V 2.NP. se nacházejí dva samostatné
podkrovní pokoje (o vel. 32,5m2, 40,9m2). Přístup
k domu je zajištěn elektrickou bránou na dálkové ovládání. Exteriér
domu – na dvoře položena kvalitní zámková…
více
informací
Hlavní třída 889/48
708 00 Ostrava - Poruba
Modelace výpočtu financování prostřednictvím STING Finance s.r.o.
Kč % Kč % Kč let 47 016 KčVypočtená modelová splátka úvěru odpovídá úrokové sazbě 4,29 % p.a. při výši úvěru 9 512 000 Kč a splatnosti 30 let. Předpokladem je splnění všech podmínek pro poskytnutí a čerpání úvěru stanovených úvěrující institucí. Nejedná se o závaznou nabídku.
Slívová Radka
724 620 138
radka.slivova(zavináč)stingfinance.cz
Nenašli jste, co jste hledali?
Napište nám vaši představu a náš makléř vám připraví výběr z aktuální nabídky.
Zadat poptávku





























