Komerční nemovitost k pronájmu, Bystřice
18 000 Kč/měsíc
- kód zakázky
- 134020
- okres
- Frýdek-Místek
- lokalita
- Bystřice
- druh prostor
- obchodní
- stav objektu
- velmi dobrý
- užitná plocha
- 70 m2
- plocha kanceláří
- 70 m2
- typ domu
- patrový
- energetická náročnost budovy
- nahrazeno předložením ročního vyúčtování
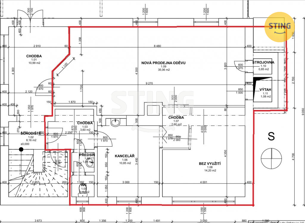
Nabízíme k pronájmu komerční prostory o celkové výměře 70m2 na strategickém místě v samotném centru obce Bystřice. Tato budova nabízí různé možnosti k podnikatelským aktivitám: prodejna, ordinace, kanceláře, výroba, sklad a další. Prostory se nacházejí v přízemí a tvoří je: hlavní místnost o výměře 35m2, druhá místnost 15m2, dále kancelář, menší kuchyňka a sociální zařízení. Topení zajišťuje plynový kotel, napojeno na všechny inženýrské sítě. Jedná se o atraktivní lokalitu, v bezprostřední blízkosti autobusová i vlaková zastávka, parkoviště, veškerá občanská vybavenost – restaurace, škola, školka, pošta, obchody, lékař, sportovní areál, bazén… Volné ihned.
Piechaczek Alexander
800 10 30 10
alexander.piechaczek(zavináč)rksting.cz
1. máje 540
739 61 Třinec
Nenašli jste, co jste hledali?
Napište nám vaši představu a náš makléř vám připraví výběr z aktuální nabídky.
Zadat poptávku
















